HMH比企郡川島町1期 中古戸建
価格
1,699
万円
種別
中古一戸建
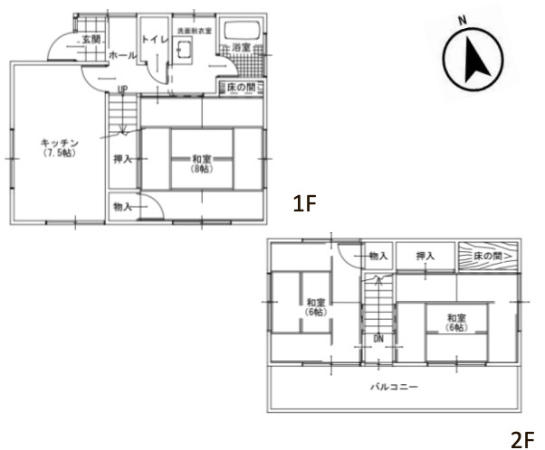
間取
3K
建物面積
67.06㎡
住所
埼玉県比企郡川島町八幡4丁目
交通
北坂戸駅
徒歩69分
担当者のコメント
後藤敦
住まいのことならDAIKICHI不動産にお任せください!!お客様のご要望に耳を傾け、お客様が知りたい情報を的確にご提供出来ますように心がけております。物件情報・土地情報・注文住宅・不動産売買・融資関係のことなど、些細なことでも構いません。DAIKICHI不動産までお気軽にご相談ください。
比企郡川島町八幡4丁目 中古戸建 北坂戸駅 中山小学校学区 西中学校学区
外観
間取り
前面道路含む現地写真
玄関
前面道路含む現地写真
外観
庭
前面道路含む現地写真