埼玉県北部の戸建て|DAIKICHI不動産(ダイキチ不動産) > 久喜市青毛第3 新築戸建 全3棟 3号棟
【幸手駅徒歩18分】通勤、通学便利♪
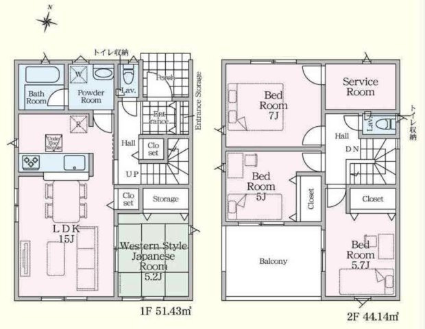
・収納に便利なサービスルーム付きでおうちがスッキリ♪
・スーパーやコンビニなど近隣に便利な商業施設多数あり♪
経験豊富なキャリアのあるスタッフが物件資料を現地までお届け致します。お子様連れでも問題ございません、この機会にぜひ現地をご覧ください♪











(※元利均等方式 金利5.00%まで ※返済年数5~50年まで入力できます)
(※ボーナスは年2回で計算しています。1000万円まで入力できます)
(※物件購入時、その他諸費用が発生する場合がございます)
| 所在地 | 埼玉県久喜市青毛3丁目2-4 | ||
|---|---|---|---|
| 交通 | |||
| 間取り/詳細 |
4LDK/ LDK 15.0帖 1室/和室 5.2帖 1室/洋室 7.0帖 1室/洋室 5.7帖 1室/洋室 5.0帖 1室 |
建物面積(坪数) | 95.57㎡(28.9坪) |
| 価格 | 2,680万円 | ||
| 駐車場/月額料金 | 有(2台)/0円 | ||
| 土地の敷金/保証金 | -/- | 借地料/借地期間 | -/- |
| 土地権利 | 所有権 | 土地面積(坪数) | 149.21㎡(45.13坪) |
| 傾斜地部分面積 | - | 路地状敷地 | - |
| 私道負担面積/セットバック | -/無 | 高圧線下面積 | - |
| 地目/地勢 | 宅地/- | 接道状況 | 一方(北 公道 5.9m 間口 8.5m) |
| 建ぺい率/容積率 | 50%/100% | 用途地域 | 第一種低層住居専用 |
| 都市計画 | 市街化区域 | 種別/構造 | 新築一戸建/木造 |
| 階建 | 2階建 | 築年月(築年数) | 2026年 4月 (予定) |
| 総区画数/販売区画数 | -/- | 向き | 南 |
| 現況 | 未完成 | その他の法令上の制限 | - |
| 取引態様/引渡時期 | 仲介/相談 | 建築確認番号 | 第KBI-SGM25-10-4862号 |
| 物件番号 | 100416079 | 取引条件の有効期限 | 2026年06月02日 |
| 設備条件 |
|
||
| 備考 | 初めての住宅購入の方は『DAIKICHI不動産』へ、是非ご相談ください! 当社スタッフは明るく、気さくに話せます。パパママ世代に寄り添ってご提案いたします。もちろん住宅購入も経験しておりますので、実際の経験談なども参考にしてみては如何でしょうか? | ||
| 設備(その他) | 公営水道、公共下水、都市ガス | ||
| 取扱会社 |
|
||
| QRコード |
このQRコードを読み取ることで、スマホでも物件情報を確認できます。 |
||
※地図上に表示される物件の位置は付近住所に所在することを表すものであり、実際の物件所在地とは異なる場合がございます。
久喜市以外の市区町村から探す
久喜市の町名から探す