埼玉県北部の戸建て|DAIKICHI不動産(ダイキチ不動産) > 久喜市西大輪 中古戸建
【東鷲宮徒歩13分】通勤、通学便利で駐車場は4台♪(車種による)
・オール電化!
・敷地面積90坪以上!南向きで陽当り良好!
・広々収納付きで大きな荷物もしまえてお部屋がスッキリ♪
経験豊富なキャリアのあるスタッフが物件資料を現地までお届け致します。お子様連れでも問題ございません、この機会にぜひ現地をご覧ください♪











(※元利均等方式 金利5.00%まで ※返済年数5~50年まで入力できます)
(※ボーナスは年2回で計算しています。1000万円まで入力できます)
(※物件購入時、その他諸費用が発生する場合がございます)
| 所在地 | 埼玉県久喜市西大輪 | ||
|---|---|---|---|
| 交通 | |||
| 間取り/詳細 |
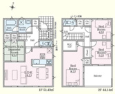
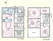
4LDK/ LDK 14.7帖 1室/洋室 5.0帖 1室/洋室 8.0帖 1室/洋室 5.0帖 1室/和室 5.7帖 1室 |
建物面積(坪数) | 104.34㎡(31.56坪) |
| 価格 | 2,690万円 | ||
| 駐車場/月額料金 | 有(4台)/0円 | ||
| 土地の敷金/保証金 | -/- | 借地料/借地期間 | -/- |
| 土地権利 | 所有権 | 土地面積(坪数) | 305.15㎡(92.30坪) |
| 傾斜地部分面積 | - | 路地状敷地 | - |
| 私道負担面積/セットバック | -/無 | 高圧線下面積 | - |
| 地目/地勢 | 宅地/- | 接道状況 | 一方(東 公道 4.1m) |
| 建ぺい率/容積率 | 60%/200% | 用途地域 | 無指定 |
| 都市計画 | 市街化調整区域 | 種別/構造 | 中古一戸建/木造 |
| 階建 | 2階建 | 築年月(築年数) | 2010年 3月 (築15年) |
| 総区画数/販売区画数 | 1区画/1区画 | 向き | 南 |
| 現況 | 空家 | その他の法令上の制限 | - |
| 取引態様/引渡時期 | 仲介/相談 | 建築確認番号 | - |
| 物件番号 | 100417574 | 取引条件の有効期限 | 2026年01月23日 |
| 設備条件 |
|
||
| 備考 |
【弊社では以下の5つをお客様にお約束いたします】 1.物件の善し悪しは全て正直にお話しします。 2.無理な売り込みや契約の催促、突然の訪問等、しつこい営業はいたしません。 3.契約したら終わりではなくお引き渡し後、お引越し後もお客様のパートナーであること。 4.ウソやおとり広告は一切使いません。(データ更新は迅速に行います。) 5.お客様の個人情報は細心の注意を払って取り扱います。 |
||
| 設備(その他) | 公営水道、浄化槽、オール電化 | ||
| 取扱会社 |
|
||
| QRコード |
このQRコードを読み取ることで、スマホでも物件情報を確認できます。 |
||
※地図上に表示される物件の位置は付近住所に所在することを表すものであり、実際の物件所在地とは異なる場合がございます。
久喜市以外の市区町村から探す
久喜市の町名から探す