埼玉県北部の戸建て|DAIKICHI不動産(ダイキチ不動産) > 熊谷市久下 中古戸建
弊社では新着物件をはじめ、多くの情報を取り扱っておりますのでぜひ店頭にてご要望をお聞かせください。
お客様のご希望に沿った物件をご紹介させていただきます。











(※元利均等方式 金利5.00%まで ※返済年数5~50年まで入力できます)
(※ボーナスは年2回で計算しています。1000万円まで入力できます)
(※物件購入時、その他諸費用が発生する場合がございます)
| 所在地 | 埼玉県熊谷市久下 | ||
|---|---|---|---|
| 交通 | |||
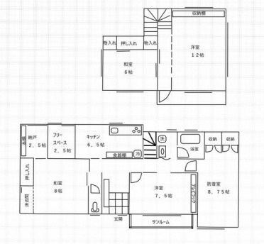
| 間取り/詳細 | 5K/ | 建物面積(坪数) | 130.27㎡(39.4坪) |
| 価格 | 790万円 | ||
| 駐車場/月額料金 | 有/0円 | ||
| 土地の敷金/保証金 | -/- | 借地料/借地期間 | -/- |
| 土地権利 | 所有権 | 土地面積(坪数) | 165.28㎡(49.99坪) |
| 傾斜地部分面積 | - | 路地状敷地 | - |
| 私道負担面積/セットバック | -/無 | 高圧線下面積 | - |
| 地目/地勢 | 宅地/- | 接道状況 | 一方(南東 公道 3.8m)(南西 公道 3.5m) |
| 建ぺい率/容積率 | 50%/80% | 用途地域 | 第一種低層住居専用 |
| 都市計画 | 市街化区域 | 種別/構造 | 中古一戸建/木造 |
| 階建 | 2階建 | 築年月(築年数) | 1966年 10月 (築59年) |
| 総区画数/販売区画数 | 1区画/1区画 | 向き | - |
| 現況 | 空家 | その他の法令上の制限 | - |
| 取引態様/引渡時期 | 仲介/即時 | 建築確認番号 | - |
| 物件番号 | 70227102 | 取引条件の有効期限 | 2025年11月24日 |
| 設備条件 |
|
||
| 備考 | 当社はお客様の満足を追求しながら、地域の人と人とのつながりを大切にした仕事をしていきたいと考えています。深谷市、熊谷市、本庄市を得意エリアとしたいわゆる『街の不動産屋さん』です。どうぞ些細なことでも気軽にお話しください。お住まい探しを楽しく、誠実にお手伝いさせていただきます! | ||
| 設備(その他) | 公営水道、個別浄化槽、プロパンガス | ||
| 取扱会社 |
|
||
| QRコード |
このQRコードを読み取ることで、スマホでも物件情報を確認できます。 |
||
※地図上に表示される物件の位置は付近住所に所在することを表すものであり、実際の物件所在地とは異なる場合がございます。
熊谷市以外の市区町村から探す
熊谷市の町名から探す