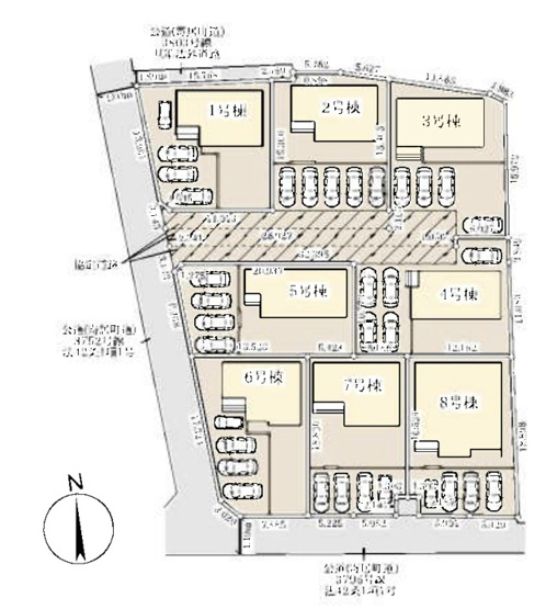
埼玉県北部の戸建て|DAIKICHI不動産(ダイキチ不動産) > 寄居町露梨子 Livele Garden.s 新築戸建 全8棟 1号棟
【住宅ローンが不安な方】最善の提案を約束します!
■東武東上線「鉢形駅」徒歩9分!通勤・通学にとても便利♪
■WIC・SIC・インナーバルコニー・長期優良住宅認定!
「今から見たい」大歓迎です。いつでもお気軽にお声がけください♪
駅からの送迎が必要なお客様は駅までお迎えにあがります。











(※元利均等方式 金利5.00%まで ※返済年数5~50年まで入力できます)
(※ボーナスは年2回で計算しています。1000万円まで入力できます)
(※物件購入時、その他諸費用が発生する場合がございます)
| 所在地 | 埼玉県大里郡寄居町大字露梨子258-1 | ||
|---|---|---|---|
| 交通 | |||
| 間取り/詳細 |
4LDK/ LDK 17.2帖 1室/和室 5.2帖 1室/洋室 8.5帖 1室/洋室 6.0帖 1室/洋室 5.5帖 1室 |
建物面積(坪数) | 113.86㎡(34.44坪) |
| 価格 | 2,490万円 | ||
| 駐車場/月額料金 | 有(4台)/0円 | ||
| 土地の敷金/保証金 | -/- | 借地料/借地期間 | -/- |
| 土地権利 | 所有権 | 土地面積(坪数) | 214.93㎡(65.01坪) |
| 傾斜地部分面積 | - | 路地状敷地 | - |
| 私道負担面積/セットバック | -/無 | 高圧線下面積 | - |
| 地目/地勢 | 宅地/- | 接道状況 | 一方(西 公道 4.8m) |
| 建ぺい率/容積率 | 60%/200% | 用途地域 | 無指定 |
| 都市計画 | 非線引区域 | 種別/構造 | 新築一戸建/木造 |
| 階建 | 2階建 | 築年月(築年数) | 2025年 11月 (新築) |
| 総区画数/販売区画数 | 8区画/8区画 | 向き | 南 |
| 現況 | 完成済み | その他の法令上の制限 | - |
| 取引態様/引渡時期 | 仲介/即時 | 建築確認番号 | 第25UDI1W建02814号 |
| 物件番号 | 96164331 | 取引条件の有効期限 | 2026年02月02日 |
| 設備条件 |
|
||
| 備考 | 初めての住宅購入の方は『DAIKICHI不動産』へ、是非ご相談ください! 当社スタッフは明るく、気さくに話せます。パパママ世代に寄り添ってご提案いたします。もちろん住宅購入も経験しておりますので、実際の経験談なども参考にしてみては如何でしょうか? | ||
| 設備(その他) | 公営水道、個別浄化槽、プロパンガス | ||
| 取扱会社 |
|
||
| QRコード |
このQRコードを読み取ることで、スマホでも物件情報を確認できます。 |
||
※地図上に表示される物件の位置は付近住所に所在することを表すものであり、実際の物件所在地とは異なる場合がございます。
大里郡寄居町以外の市区町村から探す