埼玉県北部の戸建て|DAIKICHI不動産(ダイキチ不動産) > 加須市花崎北第3 CRADLE GARDEN 新築戸建 全1棟 1号棟
東武伊勢崎線「花崎」駅まで徒歩13分♪
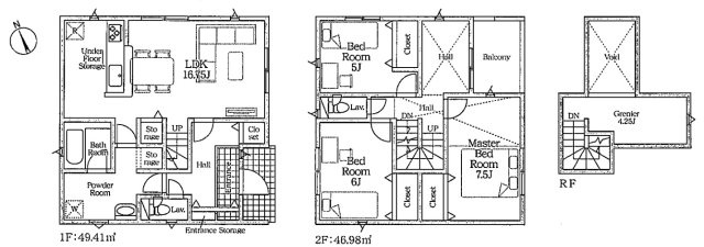
・小屋裏収納付きの3LDK住宅!LDKは16帖超♪
・花崎北小学校まで徒歩4分!通学も安心です!











(※元利均等方式 金利5.00%まで ※返済年数5~50年まで入力できます)
(※ボーナスは年2回で計算しています。1000万円まで入力できます)
(※物件購入時、その他諸費用が発生する場合がございます)
| 所在地 | 埼玉県加須市花崎北3丁目9-43 | ||
|---|---|---|---|
| 交通 | |||
| 間取り/詳細 |
3LDK/ LDK 16.7帖 1室/洋室 7.5帖 1室/洋室 6.0帖 1室/洋室 5.0帖 1室 |
建物面積(坪数) | 96.39㎡(29.15坪) |
| 価格 | 2,380万円 | ||
| 駐車場/月額料金 | 有(2台)/0円 | ||
| 土地の敷金/保証金 | -/- | 借地料/借地期間 | -/- |
| 土地権利 | 所有権 | 土地面積(坪数) | 158.10㎡(47.82坪) |
| 傾斜地部分面積 | - | 路地状敷地 | - |
| 私道負担面積/セットバック | -/無 | 高圧線下面積 | - |
| 地目/地勢 | 宅地/- | 接道状況 | 一方(南西 公道 4.5m) |
| 建ぺい率/容積率 | 60%/200% | 用途地域 | 第一種中高層住居専用 |
| 都市計画 | 市街化区域 | 種別/構造 | 新築一戸建/木造 |
| 階建 | 2階建 | 築年月(築年数) | 2025年 12月 (予定) |
| 総区画数/販売区画数 | 1区画/1区画 | 向き | 南西 |
| 現況 | 未完成 | その他の法令上の制限 | - |
| 取引態様/引渡時期 | 仲介/相談 | 建築確認番号 | 第25UDI1W建06988号 |
| 物件番号 | 98041682 | 取引条件の有効期限 | 2025年12月22日 |
| 設備条件 |
|
||
| 備考 | 初めての住宅購入の方は『DAIKICHI不動産』へ、是非ご相談ください! 当社スタッフは明るく、気さくに話せます。パパママ世代に寄り添ってご提案いたします。もちろん住宅購入も経験しておりますので、実際の経験談なども参考にしてみては如何でしょうか? | ||
| 設備(その他) | 公営水道、公共下水、プロパンガス | ||
| 取扱会社 |
|
||
| QRコード |
このQRコードを読み取ることで、スマホでも物件情報を確認できます。 |
||
※地図上に表示される物件の位置は付近住所に所在することを表すものであり、実際の物件所在地とは異なる場合がございます。
加須市以外の市区町村から探す
加須市の町名から探す
加須市花崎北第3 CRADLE GARDEN 新築戸建 全1棟 1号棟周辺の駅から探す